Viewing Listing MLS# 2528639
Myrtle Beach, SC 29579
- N/ABeds
- N/AFull Baths
- N/AHalf Baths
- 1,608SqFt
- 2026Year Built
- 1.43Acres
- MLS# 2528639
- Commercial Lease
- Retail
- Active
- Approx Time on Market1 month, 7 days
- AreaMyrtle Beach Area--Carolina Forest
- CountyHorry
- Subdivision N/A
Overview
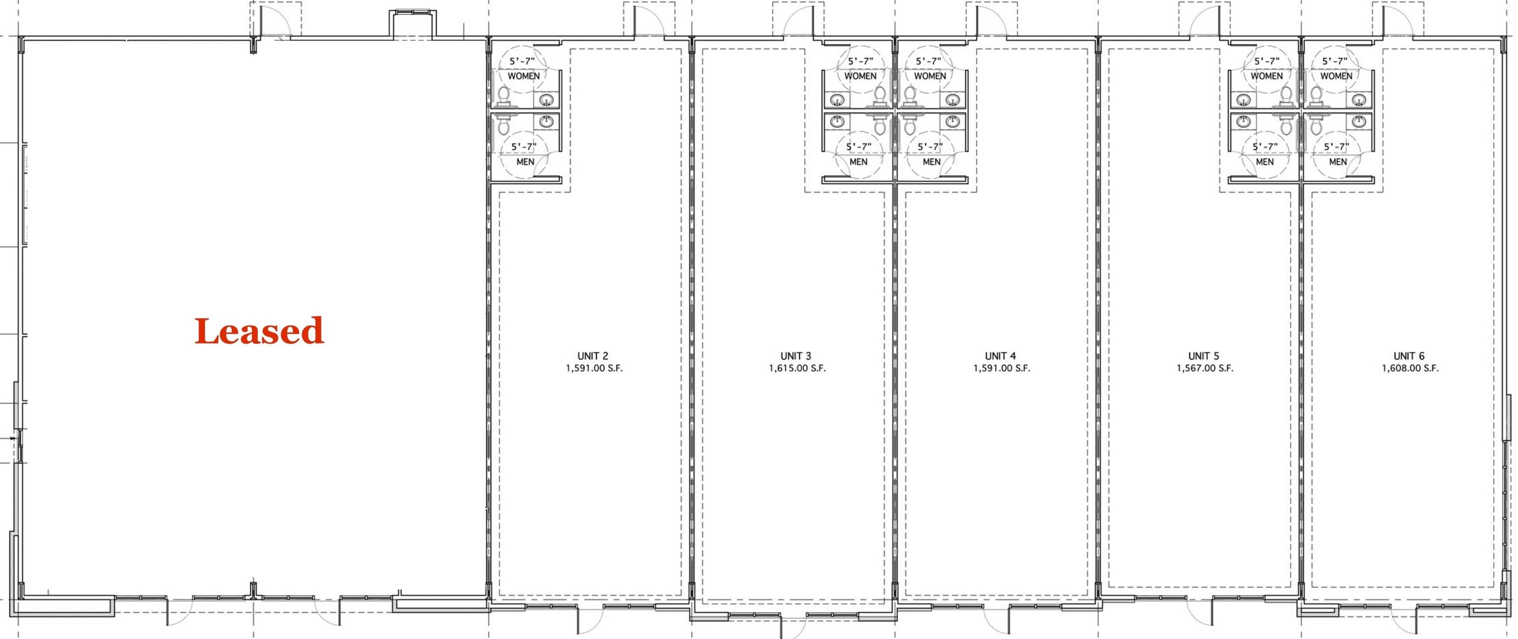
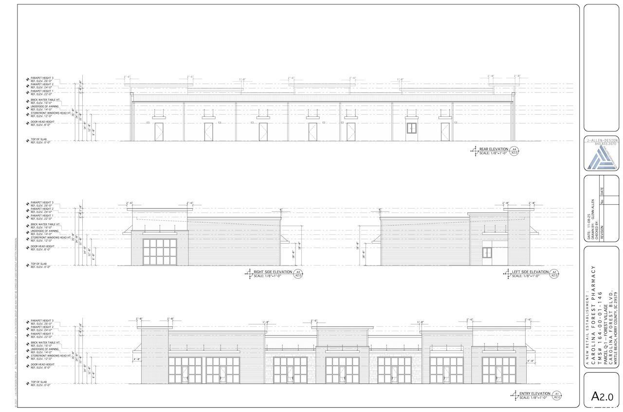
Now Pre-leasing: 11,600 SF retail strip center in the Carolina Forest submarket. Suites available from 1,567 SF to 7,972 SF. Property is conveniently positioned near the signalized intersection of Carolina Forest Blvd and River Oaks Dr, adjacent to major retailers including Publix, Food Lion, Chase Bank, South Atlantic Bank, etc. Excellent visibility and access. Located within a dense residential and retail corridor. Located within the Carolina Forest submarket near the intersection of River Oaks Drive and Carolina Forest Boulevard, this property offers excellent visibility and accessibility. Carolina Forest is a 9,000+ acre master-planned community in central Horry County with a permanent 5-mile population of over 80,000 residents. ADT is 28,900 vehicles per day (2022). The site is easily accessible from International Drive and Carolina Bays Parkway (SC-31). Surrounded by dense residential neighborhoods and continued growth, with 800+ proposed new homes.
Agriculture / Farm
Association Fees / Info
Bathroom Info
Building Info
Num Stories: 1
Levels: One
Year Built: 2026
Zoning: HC
Building Area Source: Plans
Buyer Compensation
Exterior Features
Financial
Lease Term: FiveYears
Garage / Parking
Parking Capacity: 59
Interior Features
Lot Info
Lease Considered: Yes
Acres: 1.43
Misc
Offer Compensation
Property Info
County: Horry
Current Use: Retail
Number of Units Total: 6
Stipulation of Sale: None
Property Sub Type Additional: Retail
Number of Buildings: 1
Room Info
Sold Info
Sqft Info
Sqft: 1608
Tax Info
Unit Info
Unit: Unit 6
Utilities / Hvac
Heating: Central
Cooling: CentralAir
Cooling: Yes
Sewer: PublicSewer
Heating: Yes
Waterfront / Water
Directions
Located north of the signalized intersection of Carolina Forest Boulevard and River Oaks Drive adjacent to South Atlantic Bank.Courtesy of Cb Sea Coast Commercial





Recent Posts RSS
MLS# 2529539
Provided courtesy of © Copyright 2025 Coastal Carolinas Multiple Listing Service, Inc.®. Information Deemed Reliable but Not Guaranteed. © Copyright 2025 Coastal Carolinas Multiple Listing Service, Inc.® MLS. All rights reserved. Information is provided exclusively for consumers’ personal, non-commercial use, that it may not be used for any purpose other than to identify prospective properties consumers may be interested in purchasing.
Images related to data from the MLS is the sole property of the MLS and not the responsibility of the owner of this website. MLS IDX data last updated on 12-19-2025 9:15 PM EST.
Any images related to data from the MLS is the sole property of the MLS and not the responsibility of the owner of this website.