Viewing Listing MLS# 2528923
Charleston, SC 29403
- DR-2FZoning
- AcreageType
- N/A# Lots
- N/AWater
- CharlestonCounty
- 0.21Acres
- MLS# 2528923
- Land
- Acreage
- Active
- Approx Time on Market3 months, 17 days
- Area31a Other Counties In South Carolina
- CountyCharleston
- Subdivision Not within a Subdivision
Overview
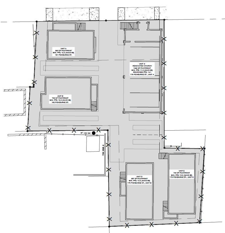
*** Permits are approved and ready to be pulled *** An exceptional permit-ready development opportunity in the heart of Charleston's Westside. 179-183 Fishburne Street is approved for the construction of five new homes, offering a rare chance to deliver a boutique residential project downtown without the long entitlement timeline. The permits are approved and ready to be pulled with the city of Charleston, allowing for a faster path to construction. The development plan includes the conversion of an existing church into a single-family home, creating a distinctive architectural centerpiece for the site. A small structure behind the church is approved for demolition, opening the parcel for efficient site circulation and maximizing buildable area. The project also provides 10 off-street parking spaces, a significant advantage in this highly walkable downtown neighborhood. This property also qualifies for the South Carolina Abandoned Building Tax Credit, providing the buyer with substantial potential tax savings and enhancing the overall feasibility and return of the redevelopment. Ideally located within Charleston's thriving Westside district, the property benefits from immediate proximity to the WestEdge Innovation District, Harmon Field, The Citadel, Hampton Park, and the peninsula's expanding medical district. Residents will enjoy close access to local favorites such as Daps Breakfast & Imbibe, Rodney Scott's BBQ, and the shops and cafes along Spring and Fishburne Streets. Numerous parks, playgrounds, athletic fields, and walking paths sit just steps away, contributing to the strong lifestyle appeal of the area. With approved plans, strong neighborhood momentum, meaningful incentives, and lasting demand for new residential product downtown, this property stands out as a rare and highly desirable infill development opportunity.
Agriculture / Farm
Horse: No
Association Fees / Info
Hoa Frequency: Monthly
Hoa: No
Bathroom Info
Building Info
New Construction: No
Zoning: DR-2F
Buyer Compensation
Exterior Features
Spa: No
Financial
Garage / Parking
Garage: No
Carport: No
Open Parking: No
Attached Garage: No
Interior Features
Fireplace: No
Lot Info
Acres: 0.21
Land Lease: No
Lot Description: Acreage
Misc
Pool Private: No
Offer Compensation
Other School Info
Property Info
County: Charleston
View: No
Senior Community: No
Stipulation of Sale: None
Property Sub Type Additional: Acreage
Property Attached: No
Rent Control: No
Room Info
Sold Info
Tax Info
Utilities / Hvac
Electric On Property: No
Cooling: No
Heating: No
Waterfront / Water
Waterfront: No
Courtesy of Dunes Commercial Properties





Recent Posts RSS
Provided courtesy of © Copyright 2026 Coastal Carolinas Multiple Listing Service, Inc.®. Information Deemed Reliable but Not Guaranteed. © Copyright 2026 Coastal Carolinas Multiple Listing Service, Inc.® MLS. All rights reserved. Information is provided exclusively for consumers’ personal, non-commercial use, that it may not be used for any purpose other than to identify prospective properties consumers may be interested in purchasing.
Images related to data from the MLS is the sole property of the MLS and not the responsibility of the owner of this website. MLS IDX data last updated on 03-21-2026 10:45 PM EST.
Any images related to data from the MLS is the sole property of the MLS and not the responsibility of the owner of this website.