Viewing Listing MLS# 2524584
North Myrtle Beach, SC 29582
- N/ABeds
- 1Full Baths
- N/AHalf Baths
- 1,890SqFt
- 1960Year Built
- 0.00Acres
- MLS# 2524584
- Rental
- Detached
- Active
- Approx Time on Market2 months, 10 days
- AreaNorth Myrtle Beach Area--Ocean Drive
- CountyHorry
- Subdivision Not within a Subdivision
Overview
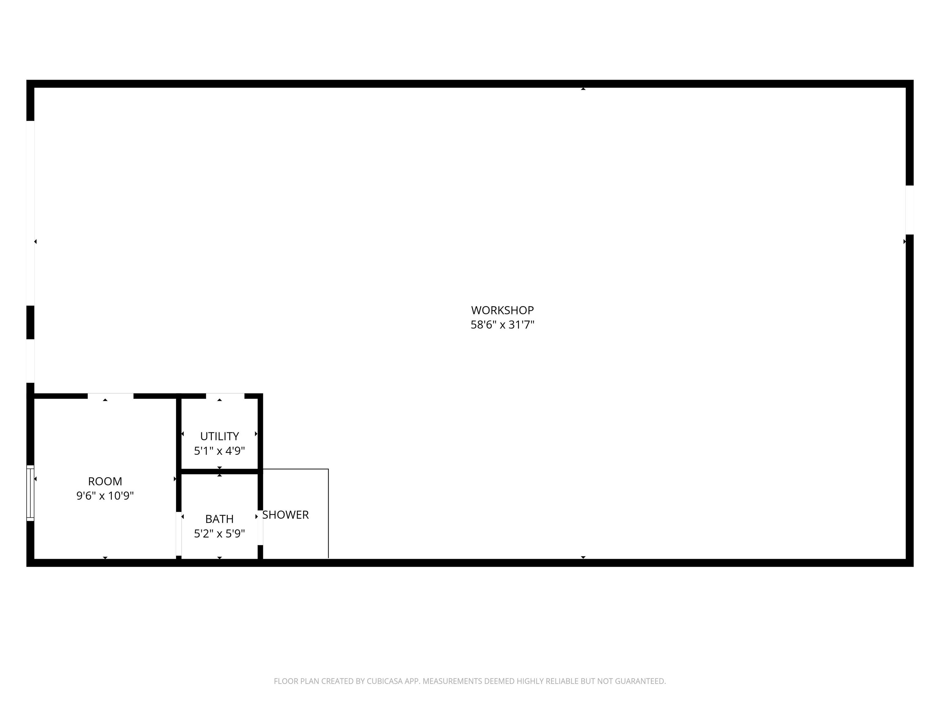
This space could best be described as a trade shop. Has a 10 ft. garage door, large secure 8 ft. fenced in area for outside storage, full bathroom with shower, central heat and air condition, partitioned off office area with access door. Mop, sink room, has higher amp electrical service to the building makes this place in the heart of North Myrtle Beach ideal to locate your trade business or hobby shop. Triple net lease. Located Directly behind the city library and farmers market keeps your trade in close proximity to local governing offices. Hwy 17 Business and a direct connect to Hwy 31 via the main street connector. Concrete block building and metal roof protect from the elements. Month to month tenant current in place. Move into your business or hobby shop immediately. May consider renting the outside storage as a stand-alone rental.
Agriculture / Farm
Association Fees / Info
Bathroom Info
Total Baths: 1.00
Fullbaths: 1
Bedroom Info
Building Info
Year Built: 1960
Zoning: MSF 10
Style: Other
Buyer Compensation
Exterior Features
Financial
Garage / Parking
Parking Type: ParkingLot
Green / Env Info
Interior Features
Furnished: Unfurnished
Lot Info
Lease Considered: Yes
Misc
Offer Compensation
Other School Info
Property Info
County: Horry
Security Deposit: 3100.00
Property Sub Type Additional: Detached
Rental Info
Room Info
Sqft Info
Building Sqft: 1890
Living Area Source: SeeRemarks
Sqft: 1890
Unit Info
Utilities / Hvac
Waterfront / Water
Directions
FROM MAIN STREET HEAD SOUTH ON BUSINESS HWY17. TURN RIGHT ON 1ST AVE S. BUILD ING LOCATED ON THE RIGHT PASSED THE LIBRARY.Courtesy of I Buy Cars & Houses - Cell: 864-283-9163





Recent Posts RSS
MLS# 2529623
Provided courtesy of © Copyright 2025 Coastal Carolinas Multiple Listing Service, Inc.®. Information Deemed Reliable but Not Guaranteed. © Copyright 2025 Coastal Carolinas Multiple Listing Service, Inc.® MLS. All rights reserved. Information is provided exclusively for consumers’ personal, non-commercial use, that it may not be used for any purpose other than to identify prospective properties consumers may be interested in purchasing.
Images related to data from the MLS is the sole property of the MLS and not the responsibility of the owner of this website. MLS IDX data last updated on 12-19-2025 7:45 PM EST.
Any images related to data from the MLS is the sole property of the MLS and not the responsibility of the owner of this website.