Viewing Listing MLS# 2528062
North Myrtle Beach, SC 29582
- 3Beds
- 3Full Baths
- N/AHalf Baths
- 2,021SqFt
- 2026Year Built
- 0.28Acres
- MLS# 2528062
- Residential
- Detached
- Active
- Approx Time on Market3 months, 27 days
- Area11f North Myrtle Beach Area--Between Hwy 17 and Waterway
- CountyHorry
- Subdivision Kingswood On the Waterway
Overview
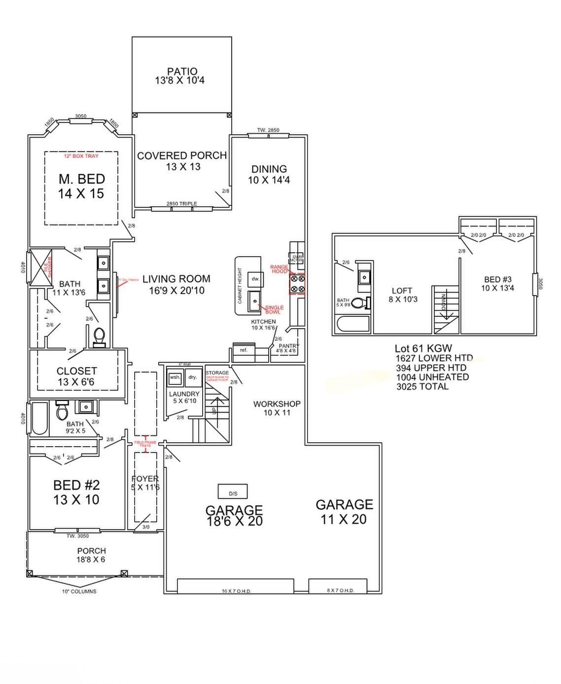
Under Construction! Welcome to the wonderful ""Indigo"" floor plan featuring 3 spacious bedrooms, 3 luxurious bathrooms, with a HUGE THREE-car garage + a workshop area, perfectly situated on a Large homesite in a prestigious Intracoastal Waterfront community in the heart of North Myrtle Beach & Just a Golf Cart ride to the Beach! Step into a bright and airy open-concept living space, thoughtfully designed with contemporary finishes and high-end fixtures throughout. The gourmet kitchen boasts state-of-the-art appliances, quartz countertops, a large center Island, natural gas range and ample cabinetry perfect for culinary adventures and entertaining guests. Relax in your luxurious main floor master suite, featuring a spacious bedroom, walk-in closet, and en-suite bathroom, with dual sinks and a gorgeous zero entry tiled shower. Located just moments away from renowned golf courses, shopping, and a variety of local dining options, every day brings a new adventure. Enjoy easy access to exciting attractions and entertainment, ensuring there's always something to explore. Public Beach Access, Central Park boasting basketball, tennis, pickleball courts, and more, as well as the NMB Aquatic and Fitness Center are all conveniently located less than 5 minutes away. Kingswood on the Waterway offers the perfect blend of relaxation and convenience. Don't miss out on this incredible opportunity to live in one of North Myrtle Beach's most desirable locations! Building lifestyles for over 40 years, we remain the premier home builder along the Grand Strand. Were proud to be the 2021, 2022, 2023, and 2024 winners of both WMBF News and The Sun News Best Home Builder awards, and the 2025 winner of The Sun News Best Home Builder. 2023, 2024, 2025, & 2026 winners of the Myrtle Beach Herald's Best Residential Real Estate Developer award, and 2024, 2025, & 2026 winners of The Horry Independents Best Residential Real Estate Developer and Best New Home Builder award. We began and remain in the Grand Strand, and we want you to experience the local pride we build today and every day in Horry and Georgetown Counties
Agriculture / Farm
Association Fees / Info
Hoa Frequency: Monthly
Hoa Fees: 85
Hoa: Yes
Hoa Includes: CommonAreas, Pools
Community Features: GolfCartsOk, Pool
Assoc Amenities: OwnerAllowedGolfCart, OwnerAllowedMotorcycle
Bathroom Info
Total Baths: 3.00
Fullbaths: 3
Room Features
FamilyRoom: Fireplace
Kitchen: KitchenIsland, Pantry, StainlessSteelAppliances, SolidSurfaceCounters
LivingRoom: BeamedCeilings, VaultedCeilings
Other: BedroomOnMainLevel, EntranceFoyer, Library, Other, UtilityRoom
PrimaryBathroom: DualSinks, SeparateShower
PrimaryBedroom: MainLevelMaster, WalkInClosets
Bedroom Info
Beds: 3
Building Info
New Construction: Yes
Num Stories: 1
Levels: OneAndOneHalf
Year Built: 2026
Zoning: R1A
Style: Ranch
Development Status: NewConstruction
Construction Materials: HardiplankType
Builders Name: Beverly Homes LLC
Builder Model: Southport
Buyer Compensation
Exterior Features
Patio and Porch Features: RearPorch, FrontPorch, Patio
Pool Features: Community, OutdoorPool
Foundation: Slab
Exterior Features: SprinklerIrrigation, Porch, Patio
Financial
Garage / Parking
Parking Capacity: 6
Garage: Yes
Parking Type: Attached, Garage, ThreeCarGarage, GarageDoorOpener
Attached Garage: Yes
Garage Spaces: 3
Green / Env Info
Green Energy Efficient: Doors, Windows
Interior Features
Floor Cover: Carpet, LuxuryVinyl, LuxuryVinylPlank
Door Features: InsulatedDoors
Laundry Features: WasherHookup
Furnished: Unfurnished
Interior Features: DualSinks, MainLevelPrimary, SplitBedrooms, SeparateShower, WalkInClosets, BedroomOnMainLevel, EntranceFoyer, KitchenIsland, StainlessSteelAppliances, SolidSurfaceCounters
Appliances: Dishwasher, Disposal, Microwave, Range
Lot Info
Acres: 0.28
Lot Description: Rectangular, RectangularLot
Misc
Offer Compensation
Other School Info
Property Info
County: Horry
Stipulation of Sale: None
Property Sub Type Additional: Detached
Security Features: SmokeDetectors
Disclosures: CovenantsRestrictionsDisclosure
Construction: NeverOccupied
Room Info
Sold Info
Sqft Info
Building Sqft: 3025
Living Area Source: Builder
Sqft: 2021
Tax Info
Unit Info
Utilities / Hvac
Heating: ForcedAir, Gas
Cooling: CentralAir
Cooling: Yes
Utilities Available: CableAvailable, ElectricityAvailable, NaturalGasAvailable, PhoneAvailable, SewerAvailable, UndergroundUtilities, WaterAvailable
Heating: Yes
Water Source: Public
Waterfront / Water
Directions
The Sales Center is located at 1538 Crooked Hook Rd. in North Myrtle Beach. From Robert Edge Parkway, Head South on HWY 17S to 6th Ave South. Take a right onto 6th Ave S. Follow 6th Ave S. to Anne St. Make a left on Anne St. and continue down Anne St. until you see Kingswood On The Waterway on your right.Courtesy of The Beverly Group





Recent Posts RSS
MLS# 2607391
Provided courtesy of © Copyright 2026 Coastal Carolinas Multiple Listing Service, Inc.®. Information Deemed Reliable but Not Guaranteed. © Copyright 2026 Coastal Carolinas Multiple Listing Service, Inc.® MLS. All rights reserved. Information is provided exclusively for consumers’ personal, non-commercial use, that it may not be used for any purpose other than to identify prospective properties consumers may be interested in purchasing.
Images related to data from the MLS is the sole property of the MLS and not the responsibility of the owner of this website. MLS IDX data last updated on 03-21-2026 11:45 PM EST.
Any images related to data from the MLS is the sole property of the MLS and not the responsibility of the owner of this website.