Viewing Listing MLS# 2607180
Myrtle Beach, SC 29575
- 4Beds
- 3Full Baths
- 1Half Baths
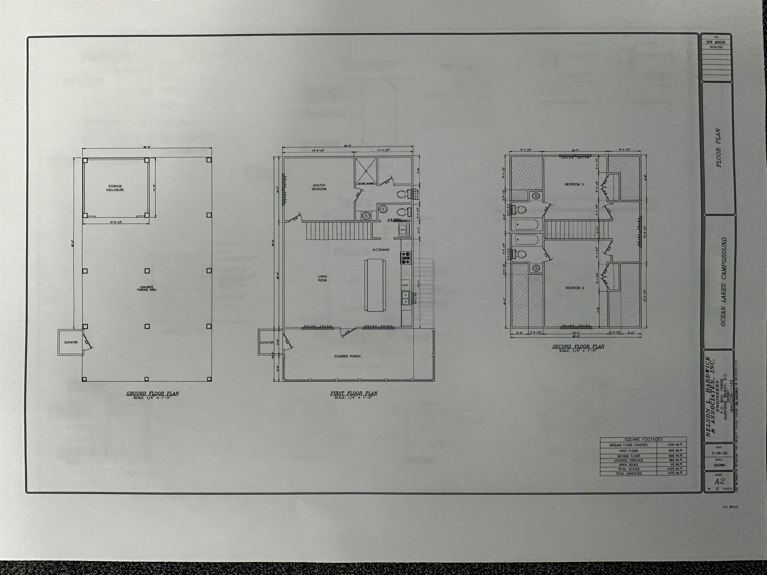
- 1,425SqFt
- 2026Year Built
- 0.05Acres
- MLS# 2607180
- Residential
- Detached
- Active
- Approx Time on Market2 months, 8 days
- AreaMyrtle Beach Area--Includes Prestwick & Lakewood
- CountyHorry
- Subdivision Ocean Lakes
Overview
This 4-bedroom 3.5 bath NEW CONSTRUCTION with ELEVATOR will be a total of 1,425 sq ft over 2 floors. 1st floor will have living room, dining area, open concept kitchen with huge island. 1st floor primary bedroom with attached full bath. 1/2 bath is located downstairs and washer/dryer for added convenience. Upstairs has 3 more bedrooms with 2 full bathrooms! Hardie board and batten vinyl siding, custom cabinetry, built in closets, quartz countertops, full quartz backsplash, quartz bathroom vanities, CROWN MOLDING throughout, bullnose finish on drywall corners, spray foam insulated roof deck, black trim windows, trex decking, black aluminum handrails, LVP flooring, custom tile shower in primary bath with glass door, full tile surround in guest bath with soaker tub. LVP flooring will be Smartcore Lanier Hickory waterproof Luxury Plank Flooring. Stamped concrete, privacy louvers, 144 sq ft garage, blacked out piers, Hardie board and batten vinyl sided outdoor shower with hot/cold water, trex ground decking, and MANY other upgrades! Completion date is 5/31/26.
Agriculture / Farm
Association Fees / Info
Hoa Frequency: Monthly
Community Features: Gated, ShortTermRentalAllowed
Assoc Amenities: Gated, Security
Bathroom Info
Total Baths: 4.00
Halfbaths: 1
Fullbaths: 3
Room Level
PrimaryBedroom: First
Room Features
DiningRoom: KitchenDiningCombo
Kitchen: KitchenIsland, StainlessSteelAppliances, SolidSurfaceCounters
LivingRoom: CeilingFans
PrimaryBathroom: SeparateShower
PrimaryBedroom: CeilingFans, MainLevelPrimary, WalkInClosets
Bedroom Info
Beds: 4
Building Info
Levels: Two
Year Built: 2026
Zoning: DP
Style: RaisedBeach
Development Status: Proposed
Construction Materials: WoodFrame
Buyer Compensation
Exterior Features
Patio and Porch Features: FrontPorch
Foundation: Raised
Exterior Features: Elevator, Storage
Financial
Garage / Parking
Parking Capacity: 4
Parking Type: Underground, GolfCartGarage
Green / Env Info
Interior Features
Floor Cover: LuxuryVinyl, LuxuryVinylPlank
Laundry Features: WasherHookup
Furnished: Unfurnished
Interior Features: CeilingFans, MainLevelPrimary, SplitBedrooms, SeparateShower, WalkInClosets, KitchenIsland, StainlessSteelAppliances, SolidSurfaceCounters
Appliances: Dishwasher, Disposal, Microwave, Range, Refrigerator
Lot Info
Acres: 0.05
Land Lease: Yes
Misc
Offer Compensation
Other School Info
Property Info
County: Horry
Stipulation of Sale: None
Security Features: GatedCommunity, SecurityService
Construction: ToBeBuilt
Room Info
Sold Info
Sqft Info
Total Sqft: 1475
Living Area Source: Estimated
Sqft: 1425
Tax Info
Unit Info
Utilities / Hvac
Heating: Central, Electric
Cooling: CentralAir
Cooling: Yes
Utilities Available: SewerAvailable
Heating: Yes
Waterfront / Water
Directions
5740 Crane Dr.Courtesy of Ocean Lakes Properties





Recent Posts RSS
MLS# 2613110
Provided courtesy of © Copyright 2026 Coastal Carolinas Multiple Listing Service, Inc.®. Information Deemed Reliable but Not Guaranteed. © Copyright 2026 Coastal Carolinas Multiple Listing Service, Inc.® MLS. All rights reserved. Information is provided exclusively for consumers’ personal, non-commercial use, that it may not be used for any purpose other than to identify prospective properties consumers may be interested in purchasing.
Images related to data from the MLS is the sole property of the MLS and not the responsibility of the owner of this website. MLS IDX data last updated on 05-28-2026 11:33 AM EST.
Any images related to data from the MLS is the sole property of the MLS and not the responsibility of the owner of this website.